Bauvorhaben
Errichtet werden Doppelhaushälften, Wohnungen, welche über eine Wohnfläche von 65 m² bis 143 m² verfügen. Das Objekt wird voraussichtlich im ersten Quartal 2024 fertiggestellt. Als KfW-40-Effizienzhaus tragen unsere Immobilien nicht nur zu einer nachhaltigen Umwelt bei, sondern auch zu einer Reduzierung Ihrer monatlichen Ausgaben.
Die Wärmepumpe als Heizsystem gewährleistet das ganze Jahr über angenehme Raumtemperaturen, während elektrische Jalousien den Komfort der Lichtregulierung bieten.
Mit dem Laden der Karte akzeptieren Sie die Datenschutzerklärung von Google.
Mehr erfahren
Lage
Grünheide (Mark) befindet sich in einer äußerst privilegierten Lage. Die Nähe zur deutschen Hauptstadt Berlin und der Tesla Gigafactory macht diese Region zu einem äußerst begehrten Wohnort. Mit einer hervorragenden Verkehrsanbindung über die Autobahn A10 und den öffentlichen Nahverkehr sind Sie in kürzester Zeit in der pulsierenden Metropole. Dennoch genießen Sie in Grünheide (Mark) die Ruhe und Idylle eines malerischen Ortes, fernab vom Trubel der Großstadt.
Wohnungen
Das Mehrfamilienhaus bietet 6 Wohnungen mit 65 m2 bis 110 m2 Wohnfläche. Die Doppelhaushälfte verfügt über 142,95 m2 Wohnfläche. Für jede Wohnung sind ein bis zwei Stellplätze vorgesehen. Jede einzelne Wohnung zeichnet sich durch eine moderne Ausstattung aus. Fußbodenheizung und elektrische Rollläden gehören zur Standardausstattung. Die Wohnungen erfüllen zudem den KfW 40-EE Standard und gewährleisten somit energieeffizientes Wohnen. Die Beheizung erfolgt mittels einer fortschrittlichen Luftwärmepumpe.
Wohnungsübersicht
Sehen Sie sich die Größen und Preise der einzelnen Wohnungen auf Ihrem PC an.
Fertigstellung am Anfang des dritten Quartals 2024.
Wohnungen und Doppelhaushälften
| Wohnung | Größe | Kaltmiete | Nebenkosten | Stellplatz |
|---|---|---|---|---|
| Whg. 1 | 82 m2 | 1.468 EUR | 170 EUR | 50 EUR |
| Whg. 2 | 65 m2 | 1.163 EUR | 150 EUR | 50 EUR |
| Whg. 3 | 78 m2 | 1.396 EUR | 170 EUR | 50 EUR |
| Whg. 4 | 65 m2 | 1.163 EUR | 150 EUR | 50 EUR |
| Whg. 5 | 78 m2 | 1.396 EUR | 170 EUR | 50 EUR |
| Whg. 6 | 110 m2 | 1.967 EUR | 180 EUR | 50 EUR |
| DHH | 143 m2 | 3.000 EUR | 200 EUR | 50 EUR |
Wir legen Wert auf die Umwelt
Fußbodenheizung
Durch eine Fußbodenheizung verbrauchen Sie durchschnittlich bis zu 20 % weniger Energie.
Dämmung
Durch den KfW-40-ee Standard in unseren Häusern verbauen wir dickere Dämmung. Durch die verbesserte Dämmung bleibt es im Winter länger warm und im Sommer kühl. Dadurch werden die von außen eindringenden Geräusche innerhalb der Wohnung bedeutend reduziert.
Wärmepumpe
Wir ersparen Ihnen die Kosten für Gas und Öl. Bei uns wird mit Wärmepumpe geheizt.
Verglasung
Die 3 Fachverglasung agiert mit der verbesserten Dämmung zusammen und ist ebenfalls ein Teil des KfW-40-ee Standards.
Fußbodenheizung
Durch eine Fußbodenheizung verbrauchen Sie durchschnittlich bis zu 20 % weniger Energie.
Dämmung
Durch den KfW-40-ee Standard in unseren Häusern verbauen wir dickere Dämmung. Durch die verbesserte Dämmung bleibt es im Winter länger warm und im Sommer kühl. Dadurch werden die von außen eindringenden Geräusche innerhalb der Wohnung bedeutend reduziert.
Wärmepumpe
Wir ersparen Ihnen die Kosten für Gas und Öl. Bei uns wird mit Wärmepumpe geheizt.
Verglasung
Die 3 Fachverglasung agiert mit der verbesserten Dämmung zusammen und ist ebenfalls ein Teil des KfW-40-ee Standards.
Wir haben Ihr Interesse geweckt?
Haus 1

1.1 Kellergeschoss – Whg. 1

1.2 Erdgeschoss – Whg. 2 & 3

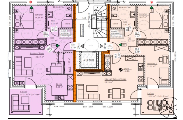
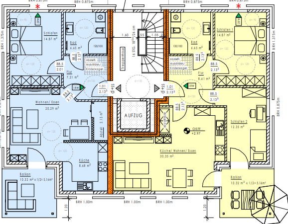
1.3 Obergeschoss – Whg. 4 & 5

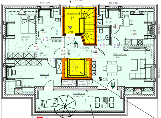
1.4 Dachgeschoss – Whg. 6

2.1 DHH – EG – Zimmer 5

2.2 DHH – OG – Zimmer 1 & 2

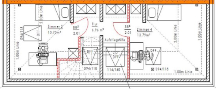
2.3 DHH – DG – Zimmer 3 & 4
